/ Rezerwacja
Mazowieckie, Wyszków
/ NIERUCHOMOŚĆ PREMIUM
Oferujemy Państwu na sprzedaż zadbany, przytulny dom w Wyszkowie-niespełna godzinę drogi z Warszawy, w stronę Białegostoku (trasa S8). Sprawdzi się dla osób marzących o przytulnej przestrzeni domowej, mogących pozwolić sobie na niespełna godzinny dojazd do Warszawy. Również dla osób mieszkających w Wyszkowie i okolicach, szukających zadbanej przestrzeni dla rodziny na zamkniętym osiedlu.
Nieruchomość prezentowana w ramach wyłącznej umowy współpracy z agencją.
Opis nieruchomości:
Dom o powierzchni całkowitej 188,22 mkw z 2014 r. znajduje się przy ul. Pogodnej na zamkniętym terenie, wśród domów jednorodzinnych. Jest to doskonała propozycja dla rodzin z dziećmi, dająca poczucie bezpieczeństwa i kameralnej, osiedlowej atmosfery.
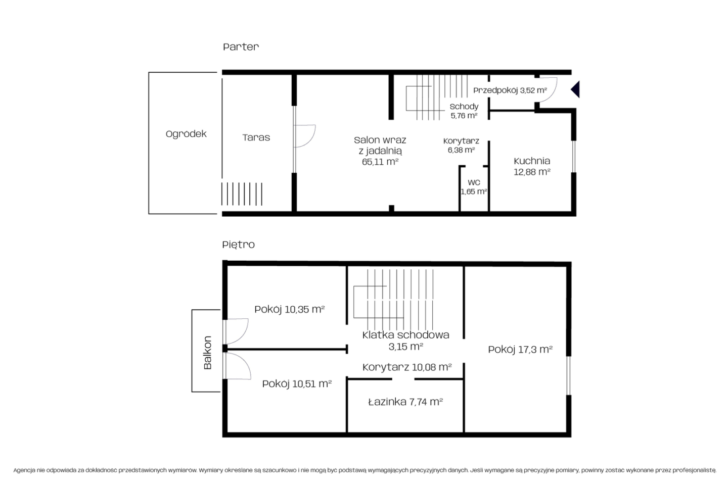
Dom składa się z następujących kondygnacji:
I kondygnacja, na której mieści się:
- przestronny salon z jadalnią
- zamknięta kuchnia,
- toaleta
Część wypoczynkowa umiejscowiona jest przy dużych oknach od strony południowej, za którymi mieści się przestronny, zadaszony taras i ogród.
II kondygnacja, na której mieści się:
- sypialnia typu master, z dużymi, pojemnymi szafami,
- pokój nr 1,
- pokój nr 2
dedykowane w tej chwili jako sypialnie dziecięce, które z łatwością można zaaranżować na inny charakter pomieszczeń
- łazienka z wanną, toaletą, bidetem.
W domu znajduje się także poddasze nieużytkowe oraz podpiwniczenie. To ostatnie jest ogromnym atutem budynku. Znajduje się w nim nie tylko garaż, ale też miejsce zaaranżowane na pralnię/suszarnię, z ogromną ilością szaf na dodatkową garderobę sezonową, kotłownia, pomieszczenie gospodarcze.
Każde z pięter łączą drewniane, wygodne schody z balustradą.
Wszystkie detale znajdujące się w domu pięknie ze sobą współgrają i uzupełniają się. W domu panuje cisza, spokój i bardzo przytulna atmosfera. Dom jest zadbany, bardzo dobrze utrzymany.
Wyposażenie domu jest w cenie, co na pewno jest kolejnym dużym atutem tej oferty.
Lokalizacja
Prezentowany dom znajduje się w Wyszkowie - stale rozwijającym się mieście, położonym nad rzeką Bug, niespełna godzinę drogi z Warszawy (trasa S8).
Miasto zapewnia nie tylko dostęp do szeregu usług handlowo-usługowych, restauracji, placówek edukacyjnych, ale także bliskość natury. Jednocześnie szybki dostęp do trasy S8 pozwala na sprawny dojazd do centrum Warszawy-nawet w niecałą godzinę.
Dodatkowe wytyczne lokalizacji:
- centrum miasta - 5 min
- park - 5 min
- tereny zielone - wokół osiedla
- przedszkola prywatne, szkoła podstawowa, basen, apteka, siłownia, stomatologia, bar, restauracja - 2 min,
- sklepy spożywcze, centra handlowe, przystanek autobusowy - 5 min.
Dla kogo nieruchomość?
Dom idealnie wpasowuje się w potrzeby pary, rodziny z dziećmi 2+1 lub 2+2.
Dla osób, które marzą o wygodnym, komfortowym i przytulnym domu w konkurencyjnej cenie wobec rynku Warszawskiego.
Dodatkowe informacje:
Dom znajduje się na zamkniętym osiedlu za bramą sterowaną pilotem. Posiada miejsce w garażu w budynku i miejsce postojowe zewnętrzne. Dom jest gotowy do zamieszkania. Jest bardzo ekonomiczny pod kątem kosztów utrzymania. W trakcie prezentacji otrzymają Państwo szczegółowe informacje dotyczące budynku.
***
Gorąco polecamy i zapraszamy do oglądania!
Więcej ciekawych ofert znajdziecie Państwo na naszej stronie internetowej.
Powyższa oferta ma charakter informacyjny i nie stanowi oferty handlowej w rozumieniu art. 66 §1 Kodeksu Cywilnego.
Nieruchomość prezentowana w ramach wyłącznej umowy współpracy z agencją.
Opis nieruchomości:
Dom o powierzchni całkowitej 188,22 mkw z 2014 r. znajduje się przy ul. Pogodnej na zamkniętym terenie, wśród domów jednorodzinnych. Jest to doskonała propozycja dla rodzin z dziećmi, dająca poczucie bezpieczeństwa i kameralnej, osiedlowej atmosfery.
Dom składa się z następujących kondygnacji:
I kondygnacja, na której mieści się:
- przestronny salon z jadalnią
- zamknięta kuchnia,
- toaleta
Część wypoczynkowa umiejscowiona jest przy dużych oknach od strony południowej, za którymi mieści się przestronny, zadaszony taras i ogród.
II kondygnacja, na której mieści się:
- sypialnia typu master, z dużymi, pojemnymi szafami,
- pokój nr 1,
- pokój nr 2
dedykowane w tej chwili jako sypialnie dziecięce, które z łatwością można zaaranżować na inny charakter pomieszczeń
- łazienka z wanną, toaletą, bidetem.
W domu znajduje się także poddasze nieużytkowe oraz podpiwniczenie. To ostatnie jest ogromnym atutem budynku. Znajduje się w nim nie tylko garaż, ale też miejsce zaaranżowane na pralnię/suszarnię, z ogromną ilością szaf na dodatkową garderobę sezonową, kotłownia, pomieszczenie gospodarcze.
Każde z pięter łączą drewniane, wygodne schody z balustradą.
Wszystkie detale znajdujące się w domu pięknie ze sobą współgrają i uzupełniają się. W domu panuje cisza, spokój i bardzo przytulna atmosfera. Dom jest zadbany, bardzo dobrze utrzymany.
Wyposażenie domu jest w cenie, co na pewno jest kolejnym dużym atutem tej oferty.
Lokalizacja
Prezentowany dom znajduje się w Wyszkowie - stale rozwijającym się mieście, położonym nad rzeką Bug, niespełna godzinę drogi z Warszawy (trasa S8).
Miasto zapewnia nie tylko dostęp do szeregu usług handlowo-usługowych, restauracji, placówek edukacyjnych, ale także bliskość natury. Jednocześnie szybki dostęp do trasy S8 pozwala na sprawny dojazd do centrum Warszawy-nawet w niecałą godzinę.
Dodatkowe wytyczne lokalizacji:
- centrum miasta - 5 min
- park - 5 min
- tereny zielone - wokół osiedla
- przedszkola prywatne, szkoła podstawowa, basen, apteka, siłownia, stomatologia, bar, restauracja - 2 min,
- sklepy spożywcze, centra handlowe, przystanek autobusowy - 5 min.
Dla kogo nieruchomość?
Dom idealnie wpasowuje się w potrzeby pary, rodziny z dziećmi 2+1 lub 2+2.
Dla osób, które marzą o wygodnym, komfortowym i przytulnym domu w konkurencyjnej cenie wobec rynku Warszawskiego.
Dodatkowe informacje:
Dom znajduje się na zamkniętym osiedlu za bramą sterowaną pilotem. Posiada miejsce w garażu w budynku i miejsce postojowe zewnętrzne. Dom jest gotowy do zamieszkania. Jest bardzo ekonomiczny pod kątem kosztów utrzymania. W trakcie prezentacji otrzymają Państwo szczegółowe informacje dotyczące budynku.
***
Gorąco polecamy i zapraszamy do oglądania!
Więcej ciekawych ofert znajdziecie Państwo na naszej stronie internetowej.
Powyższa oferta ma charakter informacyjny i nie stanowi oferty handlowej w rozumieniu art. 66 §1 Kodeksu Cywilnego.
- Powierzchnia
- 188,22 m²
- Powierzchnia działki
- 170,00 m²
- Liczba pokoi
- 5
- Rodzaj nieruchomości
- dom
- Rok budowy
- 2014
- Numer oferty
- 426/7447/ODS

Head of Warsaw / Senior Real Estate Advisor
Marta Bednarczyk-Golianek
„Jeśli potrafisz o czymś marzyć, to potrafisz także tego dokonać.”