Warszawa, Wola
/ NIERUCHOMOŚĆ PREMIUM
Wyobraź sobie miejsce, gdzie nowoczesna architektura spotyka się z dynamiczną energią miasta – a wszystko to zamknięte w jednym, narożnym lokalu o imponującej powierzchni blisko 270 m². Z panoramicznymi oknami i zaawansowanym wyposażeniem, ta przestrzeń stworzona została z myślą o rozwoju Twojego biznesu. Nieruchomość prezentowana jest w ramach wyłącznej umowy sprzedaży w naszej agencji.
Lokalizacja:
Lokal znajduje się w sercu prestiżowej XIX Dzielnicy – nowoczesnego osiedla na warszawskiej Woli, w rejonie Czyste. To jeden z najbardziej dynamicznie rozwijających się punktów stolicy, doskonale skomunikowany z centrum i pełen tętniących życiem restauracji oraz butikowych lokali usługowych. Obecność gęstej zabudowy mieszkaniowej oraz biznesowej tworzy naturalny strumień klientów.
Budynek:
Budynek przy ul. Kolejowej 47D to część nowoczesnego kompleksu mieszkaniowego zrealizowanego w 2014 roku. Apartamentowiec wyróżnia się elegancką formą architektoniczną, starannym wykończeniem części wspólnych oraz obecnością lokali handlowo-usługowych w parterze, które idealnie komponują się z miejskim stylem życia mieszkańców osiedla.
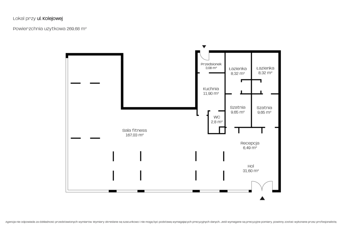
Opis Nieruchomości:
Lokal o powierzchni blisko 270 m² powstał z połączenia dwóch jednostek, tworząc jedną, otwartą przestrzeń z dużymi przeszkleniami w systemie HS. Aktualnie urządzony jako ekskluzywna siłownia z pełnym wyposażeniem – sprzęt treningowy o wartości ok. 400 000 zł (płatny dodatkowo tylko 120.000 złotych), meble biurowe oraz zaplecze sanitarne w wysokim standardzie. Narożne położenie i ekspozycja na ciąg komunikacyjny zwiększają jego widoczność i potencjał komercyjny.
Informacje Dodatkowe:
Do lokalu przynależą dwa miejsca parkingowe w garażu podziemnym – dodatkowo każde płatne 70 000 zł. Istnieje możliwość przekształcenia przestrzeni zgodnie z potrzebami nowego właściciela – idealne pod studio treningowe, centrum fizjoterapii lub koncept wellness.
Zapraszamy!
Gorąco polecamy i zapraszamy do oglądania! Więcej ciekawych ofert znajdziecie Państwo na naszej stronie internetowej. Treść niniejszego ogłoszenia nie stanowi oferty handlowej w rozumieniu Kodeksy Cywilnego.
Lokalizacja:
Lokal znajduje się w sercu prestiżowej XIX Dzielnicy – nowoczesnego osiedla na warszawskiej Woli, w rejonie Czyste. To jeden z najbardziej dynamicznie rozwijających się punktów stolicy, doskonale skomunikowany z centrum i pełen tętniących życiem restauracji oraz butikowych lokali usługowych. Obecność gęstej zabudowy mieszkaniowej oraz biznesowej tworzy naturalny strumień klientów.
Budynek:
Budynek przy ul. Kolejowej 47D to część nowoczesnego kompleksu mieszkaniowego zrealizowanego w 2014 roku. Apartamentowiec wyróżnia się elegancką formą architektoniczną, starannym wykończeniem części wspólnych oraz obecnością lokali handlowo-usługowych w parterze, które idealnie komponują się z miejskim stylem życia mieszkańców osiedla.
Opis Nieruchomości:
Lokal o powierzchni blisko 270 m² powstał z połączenia dwóch jednostek, tworząc jedną, otwartą przestrzeń z dużymi przeszkleniami w systemie HS. Aktualnie urządzony jako ekskluzywna siłownia z pełnym wyposażeniem – sprzęt treningowy o wartości ok. 400 000 zł (płatny dodatkowo tylko 120.000 złotych), meble biurowe oraz zaplecze sanitarne w wysokim standardzie. Narożne położenie i ekspozycja na ciąg komunikacyjny zwiększają jego widoczność i potencjał komercyjny.
Informacje Dodatkowe:
Do lokalu przynależą dwa miejsca parkingowe w garażu podziemnym – dodatkowo każde płatne 70 000 zł. Istnieje możliwość przekształcenia przestrzeni zgodnie z potrzebami nowego właściciela – idealne pod studio treningowe, centrum fizjoterapii lub koncept wellness.
Zapraszamy!
Gorąco polecamy i zapraszamy do oglądania! Więcej ciekawych ofert znajdziecie Państwo na naszej stronie internetowej. Treść niniejszego ogłoszenia nie stanowi oferty handlowej w rozumieniu Kodeksy Cywilnego.
- Powierzchnia
- 269,68 m²
- Rodzaj nieruchomości
- lokal
- Rok budowy
- 2011
- Numer oferty
- 27/7447/OLS

CEO / Managing Director
Dawid Małycha
Jest jurorem w programie telewizyjnym TVN "Zróbmy sobie dom", gdzie ocenia, jak prace wykonane przez uczestników podnoszą wartość rynkową remontowanych nieruchomości.