warszawa,
praga północ
4 320 000 PLN
24 945 PLN/m²
173 m²
/ NIERUCHOMOŚĆ PREMIUM
Na sprzedaż unikatowe czteropokojowe mieszkanie na osiedlu Wileńska Express.
Będzie ono doskonałym rozwiązaniem dla tych, którzy szukają swojego miejsca do życia, w szczególności dla rodzin ceniących sobie przestrzeń i komfort.
Mieszkanie prezentowane jest w ramach wyłącznej umowy sprzedaży.
Lokalizacja:
Inwestycja Wileńska Express to połączenie nowoczesnej formy i detalu inspirowanego zabudową historycznej Pragi.
W zasięgu zaledwie kilku kroków znajduje się stacja Metra Dw. Wileński, która gwarantuje świetne połączenie z innymi częściami miasta. Ponadto, sąsiedztwo Alei Solidarności i Dworca Wileńskiego zapewnia łatwy dostęp do komunikacji: tramwajów, autobusów oraz PKP. W pobliżu znajduje się dogodna infrastruktura, m.in:, restauracje, kawiarnie, piekarnie, sklepy spożywcze (Żabka w budynku, Lidl.) oraz lokale usługowe.
Niewątpliwym atutem lokalizacji jest bliskość Parku Praskiego oraz Wisły, które stanowią idealne miejsce na spokojny relaks czy aktywny wypoczynek w otoczeniu zieleni.
Opis nieruchomości:
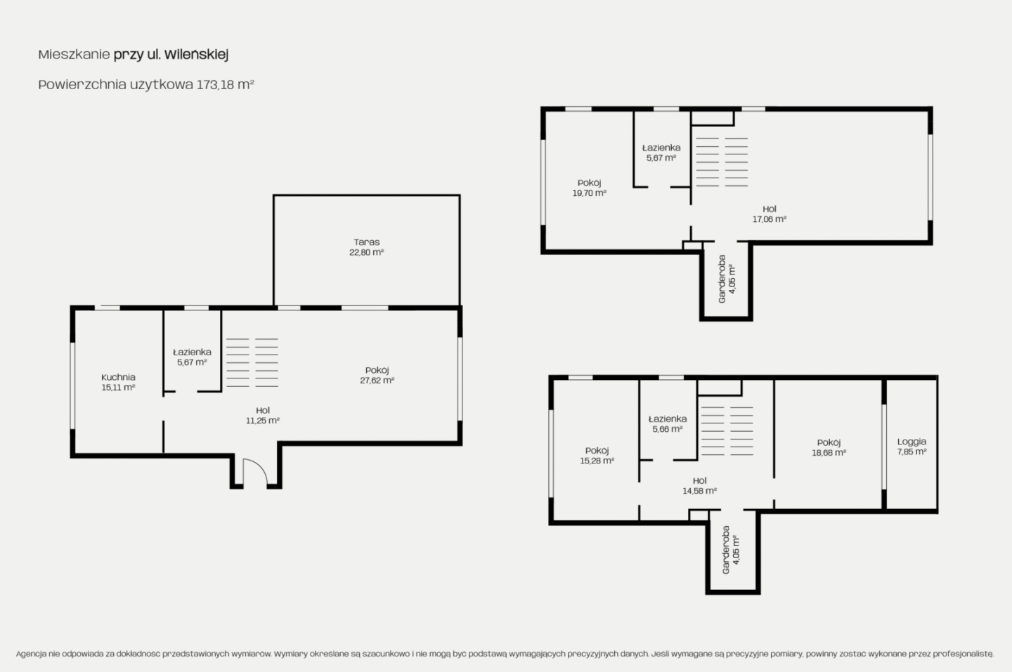
Mieszkanie znajduje się na szóstym (ostatnim) piętrze w budynku z ochroną. Jego powierzchnia to ponad 173 m2, a składają się nią trzy poziomy - niezwykle przestronna, wysoka na 6 metrów część dzienna z jadalnią i wyjściem na taras, otwarta kuchnia, trzy sypialnie, trzy łazienki oraz dwie garderoby.
Duże okna sięgające od sufitu do podłogi oraz trzystronna ekspozycja zapewniają doskonałe doświetlenie o każdej porze dnia.
Dodatkowym atutem jest klimatyzacja, która świetnie sprawdzi się w sezonie letnim.
Standard wykończenia:
Mieszkanie zachwyca wysokim standardem wykończenia oraz funkcjonalnością. Wnętrze jest nowoczesne, a przy tym ciepłe i spójne. Niewątpliwą zaletą jest piękna, drewniana podłoga, ułożona w klasyczną jodełkę, która dodaje wnętrzu charakteru, jednocześnie czyniąc je wyjątkowo przytulnym.
Meble w zabudowie wykonane według indywidualnego projektu, kamienne blaty kuchenne, sprzęt AGD, drzwi, elektrycznie przesuwane zasłony, klimatyzacja, ceramika, armatura – wszystkie elementy wyposażenia zostały starannie wyselekcjonowane spośród firm gwarantujących najwyższą jakość wykonania.
Mieszkanie jest gotowe do wprowadzenia i nie wymaga dodatkowych nakładów inwestycyjnych.
Rozkład pomieszczeń:
Nieruchomość o powierzchni ponad 173 m2 to imponująca, świetnie rozplanowana, trzypoziomowa przestrzeń, na którą składają się:
Poziom 1
- przestronny salon, z wyjściem na taras
- otwarta kuchnia
- łazienka
- przedpokój
- taras
Poziom 2
- sypialnia master
- prywatna łazienka
- garderoba
Poziom 3
- sypialnia (obecnie pokój dziecięcy)
- sypialnia (obecnie pokój gościnny)
- łazienka
- garderoba
- balkon
Kto może tu zamieszkać:
Nieruchomość to propozycja dla osób, które cenią sobie nowoczesne rozwiązania, komfort, przestrzeń oraz infrastrukturę miejską. Mieszkanie będzie idealnym wyborem dla rodzinny, a także dla pary.
Dodatkowe informacje:
Do mieszkania przynależą dwa miejsca postojowe w garażu podziemnym dodatkowo płatne 65 000,00 zł za każde.
***
Gorąco polecamy i zapraszamy do oglądania!
Więcej ciekawych ofert znajdziecie Państwo na naszej stronie internetowej.
Powyższa oferta ma charakter informacyjny i nie stanowi oferty handlowej w rozumieniu art. 66 §1 Kodeksu Cywilnego.
Będzie ono doskonałym rozwiązaniem dla tych, którzy szukają swojego miejsca do życia, w szczególności dla rodzin ceniących sobie przestrzeń i komfort.
Mieszkanie prezentowane jest w ramach wyłącznej umowy sprzedaży.
Lokalizacja:
Inwestycja Wileńska Express to połączenie nowoczesnej formy i detalu inspirowanego zabudową historycznej Pragi.
W zasięgu zaledwie kilku kroków znajduje się stacja Metra Dw. Wileński, która gwarantuje świetne połączenie z innymi częściami miasta. Ponadto, sąsiedztwo Alei Solidarności i Dworca Wileńskiego zapewnia łatwy dostęp do komunikacji: tramwajów, autobusów oraz PKP. W pobliżu znajduje się dogodna infrastruktura, m.in:, restauracje, kawiarnie, piekarnie, sklepy spożywcze (Żabka w budynku, Lidl.) oraz lokale usługowe.
Niewątpliwym atutem lokalizacji jest bliskość Parku Praskiego oraz Wisły, które stanowią idealne miejsce na spokojny relaks czy aktywny wypoczynek w otoczeniu zieleni.
Opis nieruchomości:
Mieszkanie znajduje się na szóstym (ostatnim) piętrze w budynku z ochroną. Jego powierzchnia to ponad 173 m2, a składają się nią trzy poziomy - niezwykle przestronna, wysoka na 6 metrów część dzienna z jadalnią i wyjściem na taras, otwarta kuchnia, trzy sypialnie, trzy łazienki oraz dwie garderoby.
Duże okna sięgające od sufitu do podłogi oraz trzystronna ekspozycja zapewniają doskonałe doświetlenie o każdej porze dnia.
Dodatkowym atutem jest klimatyzacja, która świetnie sprawdzi się w sezonie letnim.
Standard wykończenia:
Mieszkanie zachwyca wysokim standardem wykończenia oraz funkcjonalnością. Wnętrze jest nowoczesne, a przy tym ciepłe i spójne. Niewątpliwą zaletą jest piękna, drewniana podłoga, ułożona w klasyczną jodełkę, która dodaje wnętrzu charakteru, jednocześnie czyniąc je wyjątkowo przytulnym.
Meble w zabudowie wykonane według indywidualnego projektu, kamienne blaty kuchenne, sprzęt AGD, drzwi, elektrycznie przesuwane zasłony, klimatyzacja, ceramika, armatura – wszystkie elementy wyposażenia zostały starannie wyselekcjonowane spośród firm gwarantujących najwyższą jakość wykonania.
Mieszkanie jest gotowe do wprowadzenia i nie wymaga dodatkowych nakładów inwestycyjnych.
Rozkład pomieszczeń:
Nieruchomość o powierzchni ponad 173 m2 to imponująca, świetnie rozplanowana, trzypoziomowa przestrzeń, na którą składają się:
Poziom 1
- przestronny salon, z wyjściem na taras
- otwarta kuchnia
- łazienka
- przedpokój
- taras
Poziom 2
- sypialnia master
- prywatna łazienka
- garderoba
Poziom 3
- sypialnia (obecnie pokój dziecięcy)
- sypialnia (obecnie pokój gościnny)
- łazienka
- garderoba
- balkon
Kto może tu zamieszkać:
Nieruchomość to propozycja dla osób, które cenią sobie nowoczesne rozwiązania, komfort, przestrzeń oraz infrastrukturę miejską. Mieszkanie będzie idealnym wyborem dla rodzinny, a także dla pary.
Dodatkowe informacje:
Do mieszkania przynależą dwa miejsca postojowe w garażu podziemnym dodatkowo płatne 65 000,00 zł za każde.
***
Gorąco polecamy i zapraszamy do oglądania!
Więcej ciekawych ofert znajdziecie Państwo na naszej stronie internetowej.
Powyższa oferta ma charakter informacyjny i nie stanowi oferty handlowej w rozumieniu art. 66 §1 Kodeksu Cywilnego.
- Powierzchnia
- 173,18 m²
- Liczba pokoi
- 4
- Piętro
- 6
- Rodzaj nieruchomości
- mieszkanie
- Rok budowy
- 2021
- Numer oferty
- 1555/7447/OMS

Premium Real Estate Advisor
Monika Konopko
"Nie jest najważniejsze, byś był lepszy od innych. Najważniejsze jest, byś był lepszy od samego siebie z dnia wczorajszego."